Добро пожаловать на http://vipplan.ru

Випплан Вязники - это тысячи проектов домов в нашем каталоге!

Вы всегда сможете найти для себя проект дома вашей мечты! Даже если этого не случилось, мы готовы в любую минуту предложить проект индивидуального дома.

Забыли пароль?
Вы еще не регистрировались?

Перейдите по ссылке ниже на страницу регистрации.

Регистрация...

Внимание!!!

В проектную документацию могут быть внесены изменения любой сложности, в соответствии в Вашими пожеланиями!

Полезные статьи

Установка систем вентиляции

Проектирование и установка систем вентиляции начинается на этапе создания проекта дома, в котором, наряду с газо- и электрификацией, водоснабжением и системой канализации, проектируется система вентиляции...

Мероприятия по получению разрешения на строительство в Вязниках

Хотите построить дом в Вязниках? Не знаете с чего начать? Для начала, нужно заказать проект, а после получить разрешение на строительство. ...

Проекты домов и коттеджей > Каталог проектов домов > Одноэтажный дом с тремя спальнями, парилкой и комнатой отдыха Vg3780

Одноэтажный дом с тремя спальнями, парилкой и комнатой отдыха Vg3780

Одноэтажный дом с тремя спальнями, парилкой и комнатой отдыха
Зарегистрируйтесь

Проект № Vg3780


Техническое описание
Общая площадь: 239.38 м2
Жилая площадь: 124.65 м2
Высота здания: 6.52 м
Размеры дома: 17.47м×24.62м
Кол-во комнат: 6
Цокольный этаж: нет
Гараж: нет
Мансарда: нет

Kонструкция
Фундамент: монолитная плита
Перекрытия: монолитные, деревянные балки
Материал стен: material_mon

Архитектурный раздел
Конструктивный раздел
АР+КР - 64 000 (Со скидкой 20%)
Одноэтажный дом с тремя спальнями, парилкой и комнатой отдыха, с габаритными размерами здания 7,42х13,52 м. Фундамент - мелкозаглубленная плита с ребрами под несущие стены. Наружные стены - газобетонные блоки с отделкой штукатуркой. Внутренние стены - газобетонные блоки. Перегородки - газобетонные блоки. Пол этажа - пол по монолитной плите Чердачное перекрытие - сборные ж/б плиты. Крыша - многоскатная. Кровля - битумная черепица. Окна - металлопластиковые.
Генплан застройки участка / Паспорт проекта 7000 руб / 10000 руб
Инженерный раздел (полный) 119500 руб
Смета на строительство 59750 руб
Теплотехнический расчет материалов стен Бесплатно
Стоимость проекта со незначительнми изменениями 74000 руб
Стоимость проекта со средними изменениями* 92000 руб
Стоимость проекта со значительными изменениями** 96700 руб

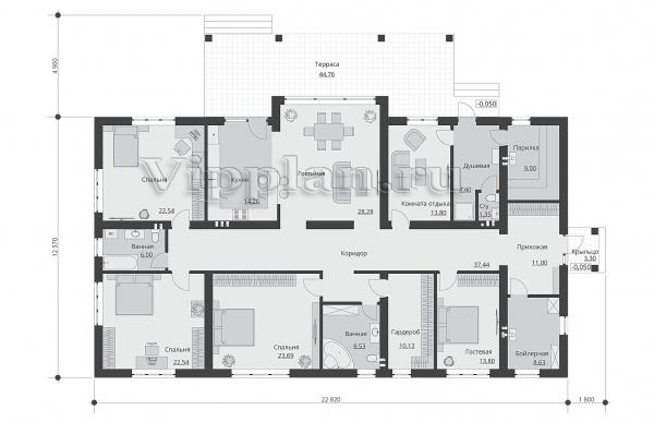
План первого этажа


Прихожая - 11,00 м2
Парилка - 9,00 м2
С/у - 3,50 м2
Душевая - 8,40 м2
Комната отдыха - 13,80 м2
Гостиная - 28,28 м2
Кухня - 14,26 м2
Спальня - 22,54 м2
Ванная - 6,00 м2
Спальня - 22,54 м2
Спальня - 23,69 м2
Ванная - 8,53 м2
Гардероб - 10,12 м2
Гостевая - 13,80 м2
Коридор - 37,44 м2
Бойлерная - 8,63 м2
Одноэтажный дом с тремя спальнями, парилкой и комнатой отдыха Одноэтажный дом с тремя спальнями, парилкой и комнатой отдыха Одноэтажный дом с тремя спальнями, парилкой и комнатой отдыха Одноэтажный дом с тремя спальнями, парилкой и комнатой отдыха
Внесение изменений и привязка к участку строительства

В любой из проектов от компании VIPplan - Вязники по вашему желанию могут быть внесены изменения в материалы стен, материалы наружной отделки дома, а также будет произведена адаптация проекта под конкретный регион строительства (с учетом грунтов региона, геологических особенностей вашего участка и местных климатических условий) - БЕСПЛАТНО !!! (кроме проектов со скидкой и проектов наших партнеров).

Любой из проектов, размещенных на сайте vyazniki.vipplan.ru мы можем выполнить из требуемых вам строительных материалов: ячеистый бетон (газобетон, пеноблок), керамоблок, кирпич, шлакоблок, бетонный блок, дерево (брус, клееный брус), каркасная технология (деревянный каркас, металлокаркас (ЛСТК)).

Фасад дома и его наружную отделку так же возможно выполнить с применением различных облицовочных материалов: структурной штукатурки, (с утеплителем и без), сайдингом (пластиковый или металлосайдинг), фиброплитами, кирпича.

 
6 Избранные
проекты

Доставка проектов по России: Москва (Московская область), Санкт-Петербург (Ленинградская область), Краснодар, Ростов-на-Дону, Ставрополь, Сочи, Волгоград, Новосибирск, Белгород, Брянск, Воронеж, Саратов, Хабаровск, Астрахань, Нальчик, Владикавказ, Екатеринбург, Тюмень, Самара, Нижний Новгород, Казань, Пермь, Уфа, Челябинск, Красноярск, Ханты-Мансийск, Иркутск, Курган, Оренбург, Омск, Томск, Барнаул, Новокузнецк, Кемерово, Абакан, Чита, Якутск, Южно-Сахалинск, Петропавловск-Камчатский и страны ближнего зарубежья: Белоруссия, Украина, Казахстан