Добро пожаловать на http://vipplan.ru

Випплан Вязники - это тысячи проектов домов в нашем каталоге!

Вы всегда сможете найти для себя проект дома вашей мечты! Даже если этого не случилось, мы готовы в любую минуту предложить проект индивидуального дома.

Забыли пароль?
Вы еще не регистрировались?

Перейдите по ссылке ниже на страницу регистрации.

Регистрация...

Внимание!!!

В проектную документацию могут быть внесены изменения любой сложности, в соответствии в Вашими пожеланиями!

Полезные статьи

Выбор проекта дома (площадь, этажность - 1 или 2 этажа)

Для того что бы выбрать проект дома, предварительно необходимо определиться, какой будет площадь будущего дома (решение зависит от количества человек, планирующих постоянно в нем проживать), количество спален, санузлов и ванных комнат, компоновка дома, одноэтажный, масардный или двухэтажный дом (зависит от площади участка и предпочтений будущих хозяев) ...

Окна в доме

От хорошего стеклопакета зависит почти 50% теплостойкости всего дома. Ведь на проемы в окнах приходится до 45% тепловых потерь дома. Поэтому хорошие стеклопакеты не пропускают тепло из комнаты и должны противостоять проникновению ветра, влаги и холода с наружной стороны....

Проекты домов и коттеджей > Каталог проектов домов > Одноэтажный банный комплекс с мансардой Vg2844

Одноэтажный банный комплекс с мансардой Vg2844

Одноэтажный банный комплекс с мансардой
Зарегистрируйтесь

Проект № Vg2844


Техническое описание
Общая площадь: 203.95 м2
Жилая площадь: 27.2 м2
Высота здания: 7.9 м
Размеры дома: 22.94м×22.31м
Кол-во комнат: 2
Цокольный этаж: нет
Гараж: нет
Мансарда: есть

Kонструкция
Фундамент: свайный
Перекрытия: монолитные
Материал стен: material_mon

Архитектурный раздел
Конструктивный раздел
АР+КР - 64 000 (Со скидкой 20%)
Одноэтажный банный комплекс с мансардой с размерами здания 22,94 х 22,31 м. Фундамент - свайно-ростверковый буронабивной. Наружные стены - керамический блок с утеплением мин. ватой и отделкой штукатуркой и камнем. Внутренние стены - керамический блок. Перегородки - керамический блок. Пол 1 этажа, межэтажное перекрытие - монолитные ж/б плиты. Крыша многоскатная. Кровля – битумная черепица. Окна — металлопластиковые.
Генплан застройки участка / Паспорт проекта 7000 руб / 10000 руб
Инженерный раздел (полный) 102000 руб
Смета на строительство 51000 руб
Теплотехнический расчет материалов стен Бесплатно
Стоимость проекта со незначительнми изменениями 74900 руб
Стоимость проекта со средними изменениями* 90200 руб
Стоимость проекта со значительными изменениями** 94300 руб

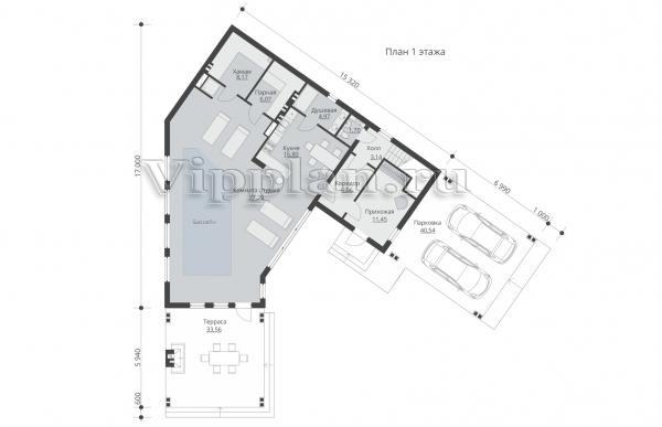
План первого этажа


Прихожая - 11,45 м2
Коридор - 6,06 м2
Холл - 3,14 м2
Кухня - 16,80 м2
С/у - 1,70 м2
Душевая - 4,97 м2
Парная - 6,07 м2
Хамам - 8,17 м2
Комната - 77,20 м2

План мансардного этажа


Коридор - 21,74 м2
Лоджия - 12,47 м2
Спальня - 15,66 м2
С/у - 4,28 м2
Гардероб - 2,70 м2
Спальня - 11,54 м2
Одноэтажный банный комплекс с мансардой Одноэтажный банный комплекс с мансардой Одноэтажный банный комплекс с мансардой Одноэтажный банный комплекс с мансардой
Внесение изменений и привязка к участку строительства

В любой из проектов от компании VIPplan - Вязники по вашему желанию могут быть внесены изменения в материалы стен, материалы наружной отделки дома, а также будет произведена адаптация проекта под конкретный регион строительства (с учетом грунтов региона, геологических особенностей вашего участка и местных климатических условий) - БЕСПЛАТНО !!! (кроме проектов со скидкой и проектов наших партнеров).

Любой из проектов, размещенных на сайте vyazniki.vipplan.ru мы можем выполнить из требуемых вам строительных материалов: ячеистый бетон (газобетон, пеноблок), керамоблок, кирпич, шлакоблок, бетонный блок, дерево (брус, клееный брус), каркасная технология (деревянный каркас, металлокаркас (ЛСТК)).

Фасад дома и его наружную отделку так же возможно выполнить с применением различных облицовочных материалов: структурной штукатурки, (с утеплителем и без), сайдингом (пластиковый или металлосайдинг), фиброплитами, кирпича.

 
6 Избранные
проекты

Доставка проектов по России: Москва (Московская область), Санкт-Петербург (Ленинградская область), Краснодар, Ростов-на-Дону, Ставрополь, Сочи, Волгоград, Новосибирск, Белгород, Брянск, Воронеж, Саратов, Хабаровск, Астрахань, Нальчик, Владикавказ, Екатеринбург, Тюмень, Самара, Нижний Новгород, Казань, Пермь, Уфа, Челябинск, Красноярск, Ханты-Мансийск, Иркутск, Курган, Оренбург, Омск, Томск, Барнаул, Новокузнецк, Кемерово, Абакан, Чита, Якутск, Южно-Сахалинск, Петропавловск-Камчатский и страны ближнего зарубежья: Белоруссия, Украина, Казахстан