Добро пожаловать на http://vipplan.ru

Випплан Вязники - это тысячи проектов домов в нашем каталоге!

Вы всегда сможете найти для себя проект дома вашей мечты! Даже если этого не случилось, мы готовы в любую минуту предложить проект индивидуального дома.

Забыли пароль?
Вы еще не регистрировались?

Перейдите по ссылке ниже на страницу регистрации.

Регистрация...

Внимание!!!

В проектную документацию могут быть внесены изменения любой сложности, в соответствии в Вашими пожеланиями!

Полезные статьи

Укладка тротуарной плитки

При укладке тротуарной плитки, необходимо соблюдать технологию, во избежание, разрушения и расшатывания покрытия. Первый этап - подготовка основания.  ...

Проекты быстровозводимых домов и коттеджей в Вязниках

Некоторые люди до сих пор считают, что быстровозводимые дома представляют собой безликие, недолговечные, однотипные строения. Эти утверждения не соответствуют действительности. На данный момент, строительные технологии шагнули вперед и дома «быстрого приготовления» считаются эталоном комфорта, уюта и даже выделяются, в архитектурном плане, на фоне дорогих кирпичных коттеджей. Быстровозводимые дома не дорогие и изготавливаются в кратчайшие сроки....

Проекты домов и коттеджей > Каталог проектов домов > Двухэтажный дом с гаражом на две машины и террасой Vg2639

Двухэтажный дом с гаражом на две машины и террасой Vg2639

Двухэтажный дом с гаражом на две машины и террасой
Зарегистрируйтесь

Проект № Vg2639


Техническое описание
Общая площадь: 303 м2
Жилая площадь: 146.79 м2
Высота здания: 9.75 м
Размеры дома: 16.3м×13.8м
Кол-во комнат: 6
Цокольный этаж: нет
Гараж: нет
Мансарда: нет

Kонструкция
Фундамент: ленточный
Перекрытия: сборные ж/б

Архитектурный раздел
Конструктивный раздел
АР+КР - 84 000 (Со скидкой 20%)
Двухэтажный дом с гаражом на две машины и террасой с размерами здания 16,30 x 13,80 м. Фундамент - ленточный монолитный ж/б. Наружные стены - забутовочный кирпич, пеноплэкс и отделка облицовочным кирпичом. Внутренние стены - забутовочный кирпич. Перегородки - забутовочный кирпич. Пол 1 этажа и межэтажное перекрытие - сборные ж/б плиты перекрытия. Чердачное перекрытие - деревянные балки перекрытия. Крыша - многоскатная. Кровля - битумная черепица. Лестница - деревянная. Окна - металлопластиковые.
Генплан застройки участка / Паспорт проекта 7000 руб / 10000 руб
Инженерный раздел (полный) 151500 руб
Смета на строительство 75750 руб
Теплотехнический расчет материалов стен Бесплатно
Стоимость проекта со незначительнми изменениями 97400 руб
Стоимость проекта со средними изменениями* 120200 руб
Стоимость проекта со значительными изменениями** 126200 руб

План первого этажа


Прихожая - 5,51 м2
Холл - 11,54 м2
Кладовая - 3,57 м2
Кухня - 12,21 м2
Кладовая - 3,70 м2
Столовая - 17,53 м2
Гостиная - 37,37 м2
Кабинет - 12,31 м2
Помещение1 - 5,72 м2
Холл - 2,92 м2
С/у - 4,96 м2
Бойлерная - 3,60 м2
Гараж - 36,19 м2
Гардероб - 6,09 м2

Двухэтажный дом с гаражом на две машины и террасой

Двухэтажный дом с гаражом на две машины и террасой

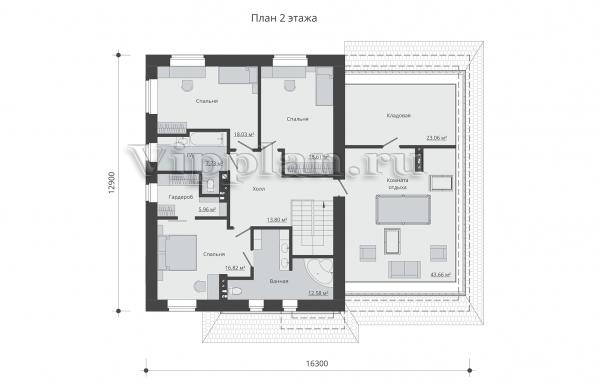
План второго этажа


Холл - 13,80 м2
Ванная - 12,58 м2
Спальня - 16,82 м2
Гардероб - 5,96 м2
С/у - 7,73 м2
Спальня - 18,03 м2
Спальня - 18,61 м2
Кладовая - 16,14 м2
Комната - 30,56 м2
Двухэтажный дом с гаражом на две машины и террасой Двухэтажный дом с гаражом на две машины и террасой Двухэтажный дом с гаражом на две машины и террасой Двухэтажный дом с гаражом на две машины и террасой
Внесение изменений и привязка к участку строительства

В любой из проектов от компании VIPplan - Вязники по вашему желанию могут быть внесены изменения в материалы стен, материалы наружной отделки дома, а также будет произведена адаптация проекта под конкретный регион строительства (с учетом грунтов региона, геологических особенностей вашего участка и местных климатических условий) - БЕСПЛАТНО !!! (кроме проектов со скидкой и проектов наших партнеров).

Любой из проектов, размещенных на сайте vyazniki.vipplan.ru мы можем выполнить из требуемых вам строительных материалов: ячеистый бетон (газобетон, пеноблок), керамоблок, кирпич, шлакоблок, бетонный блок, дерево (брус, клееный брус), каркасная технология (деревянный каркас, металлокаркас (ЛСТК)).

Фасад дома и его наружную отделку так же возможно выполнить с применением различных облицовочных материалов: структурной штукатурки, (с утеплителем и без), сайдингом (пластиковый или металлосайдинг), фиброплитами, кирпича.

 
6 Избранные
проекты

Доставка проектов по России: Москва (Московская область), Санкт-Петербург (Ленинградская область), Краснодар, Ростов-на-Дону, Ставрополь, Сочи, Волгоград, Новосибирск, Белгород, Брянск, Воронеж, Саратов, Хабаровск, Астрахань, Нальчик, Владикавказ, Екатеринбург, Тюмень, Самара, Нижний Новгород, Казань, Пермь, Уфа, Челябинск, Красноярск, Ханты-Мансийск, Иркутск, Курган, Оренбург, Омск, Томск, Барнаул, Новокузнецк, Кемерово, Абакан, Чита, Якутск, Южно-Сахалинск, Петропавловск-Камчатский и страны ближнего зарубежья: Белоруссия, Украина, Казахстан